CI, Konzeption und Innenausbau

Merdin’s Cheesy Döner

CI, Konzeption und Innenausbau

'Merdin's Cheesy Döner'

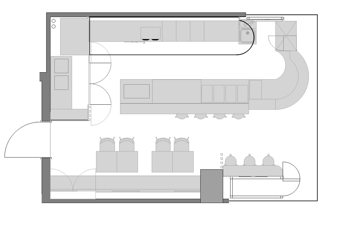
Ein kompaktes Gastronomiekonzept auf nur 40 m² wurde in einem modernen und einladenden Stil umgesetzt. Ziel war es, eine freundliche und frische Atmosphäre zu schaffen, in der Gäste nicht nur schnell essen, sondern sich auch wohlfühlen können.

Das Farbkonzept basiert auf Türkis- und Blautönen, kombiniert mit Holzoberflächen und goldenen Akzenten in der Beleuchtung. Die Theke mit vertikalen Streifen verleiht dem Raum Dynamik, während samtbezogene Stühle zum Verweilen einladen. Orientalisch inspirierte Muster an den Wänden unterstreichen den kulinarischen Hintergrund des Konzepts.

Trotz der kleinen Fläche gelang es, Küche, Theke und Sitzbereiche effizient und offen zu gestalten.

Das Projekt verbindet Ästhetik, Funktionalität und Wiedererkennbarkeit – ein modernes Streetfood-Erlebnis mit durchdachtem Innenraumdesign.

Das Ladendesign ist Teil eines übergreifenden Mehrfachkonzepts, das an mehreren Standorten umgesetzt wird – unter anderem in der Altmarkt-Galerie Dresden (bereits realisiert) sowie in Bautzen (aktuell im Bau). Trotz unterschiedlicher räumlicher Handschrift wird eine moderne, warme Atmosphäre mit hohem Wiedererkennungswert erkennbar.

Auftragsart

Corporate Identity, Konzeption und Innenausbau

Zeitraum

2025

Bauherr

Merdin's Cuisine

Status

Altmarkt-Galerie Dresden - fertiggestellt, Kornmarkt-Center Bautzen - in Bearbeitung

Größe

40 m²

  • Auftragsart : Corporate Identity, Konzeption und Innenausbau
  • Zeitraum : 2025
  • Bauherr : Merdin's Cuisine
  • Status : Altmarkt-Galerie Dresden - fertiggestellt, Kornmarkt-Center Bautzen - in Bearbeitung
  • Größe : 40 m²